창천어린이집 복합시설 설계공모
Location l 69, Changjeon-ro, Mapo-gu, Seoul, Korea
Type l architecture, competition
Program l Multi-purpose Childcare Facility
Status l Completed (2025)
Site area l 911.90 ㎡
Total floor area l 2,750.74 ㎡
Number of floors l B1, 5 floors
Team l Hyunjin Cho, Chulho Lee, Chaeyoon Song
Younghoon Jung, Sohee Yang, Kim Seoyeon
서울 마포 창전로 69번지는 상업과 주거, 고립과 흐름이 교차하는 전이지대에 놓여 있습니다. 우리는 이 부지를 단순히 기능을 대체하는 시설의 부지가 아니라, 변화하는 도시의 생활 리듬과 세대 간의 관계가 중첩되는 일상의 층위를 담아내는 장소로 해석합니다.
통계청에 따르면 2025년 대한민국의 65세 이상 노인 인구 비율은 20%를 넘어섰으며, 이는 이미 ‘초고령사회’의 진입을 의미합니다. 반면 2023년 출생아 수는 약 23만 명으로 역대 최저치를 기록하여, 아동 인구는 빠른 속도로 감소하고 있습니다. 이 불균형은 기존 보육시설의 수요를 줄이고, 동시에 노인 돌봄과 여가 공간의 수요를 폭발적으로 증가시키고 있습니다.
우리는 이러한 사회적 변화에 대응해, 이 건축을 ‘세대 공존을 실험하는 공공적 플랫폼’으로 제안합니다. 단순한 기능 수용을 넘어, 서로 다른 세대가 한 건물 안에서 어떻게 조우하고, 어떤 방식으로 시간을 공유하며, 또 어떻게 독립성을 유지할 수 있는지를 탐구하는 공간 입니다.
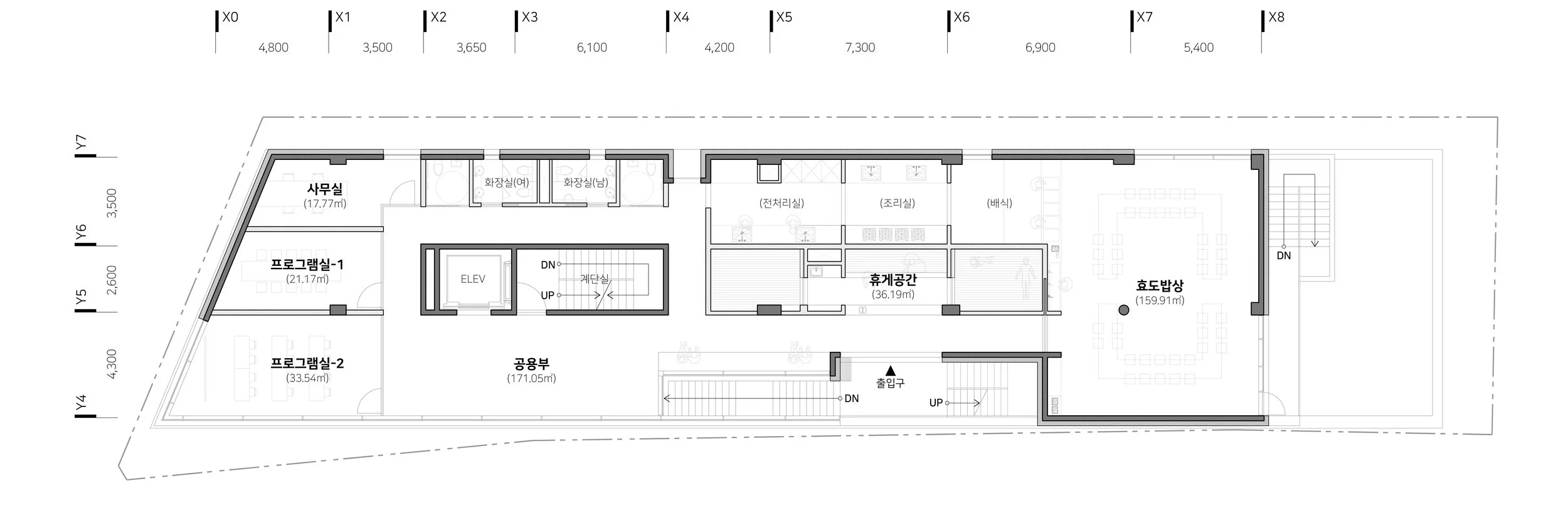
프로그램은 1층 어린이집, 2층 키즈카페, 3층 청소년 스터디카페, 4층 경로당, 5층 열린 강당으로 구성됩니다. 이는 연령대별 프로그램의 적층이면서도, 공용 홀과 테라스를 통해 세대가 시각적으로 교차하고 간접적으로 교류할 수 있는 구조적 장치입니다. 층마다의 고유성을 존중하면서도, 서로를 배제하지 않는 느슨한 연결을 만들어내는 것이 이 건축의 핵심 전략입니다.
우리는 공공성과 프라이버시, 접근성과 분리라는 상충하는 요소들을 균형 있게 고려합니다. 보육, 노인 공간은 충돌 없는 동선을 확보하여 각자의 영역을 보장하지만, 그 사이를 잇는 구조적 질서는 단순한 기술적 해법이 아니라 건축적 언어로 작동합니다. 반복되는 기둥과 보의 리듬, 비례를 기반으로 한 단면은 공간을 지탱하는 동시에 세대를 잇는 건축적 질서를 드러냅니다.
특히, 외부 계단은 단순한 수직 동선이 아니라 세대를 연결하는 오브제로 작동합니다. 각 층의 프로그램을 느슨하게 관통하며, 아이들의 웃음소리와 청소년의 발걸음, 어르신들의 대화가 층간에 스며드는 매개가 됩니다. 이는 서로 다른 세대가 물리적으로 분리되어 있으면서도 시각적·청각적으로 교차하는 경험을 가능하게 하고, 결과적으로 건축이 세대 공존의 장면을 연출하는 장치로 확장되는 것을 의미합니다.
이 건축은 결과적으로 세대를 분리하면서도 연결하는 ‘공존의 구조’를 제안합니다. 공유 홀과 테라스를 통해 서로의 존재를 인식하고, 외부 계단을 통해 수직적 흐름이 드러나면서, 서로 다른 세대가 일상 속에서 자연스럽게 소통하게 됩니다. 이는 곧 “같은 건물을 쓰되, 각자의 시간과 방식으로 공존하는 건축”이라는 목표로 귀결됩니다.
