Sinsa 552
Location l Sinsa-dong, Gangnam-gu, Seoul
Type l architecture, New construction
Program l Neighborhood Living facilities
Status l Completed (2024)
Site area l 264.50 ㎡
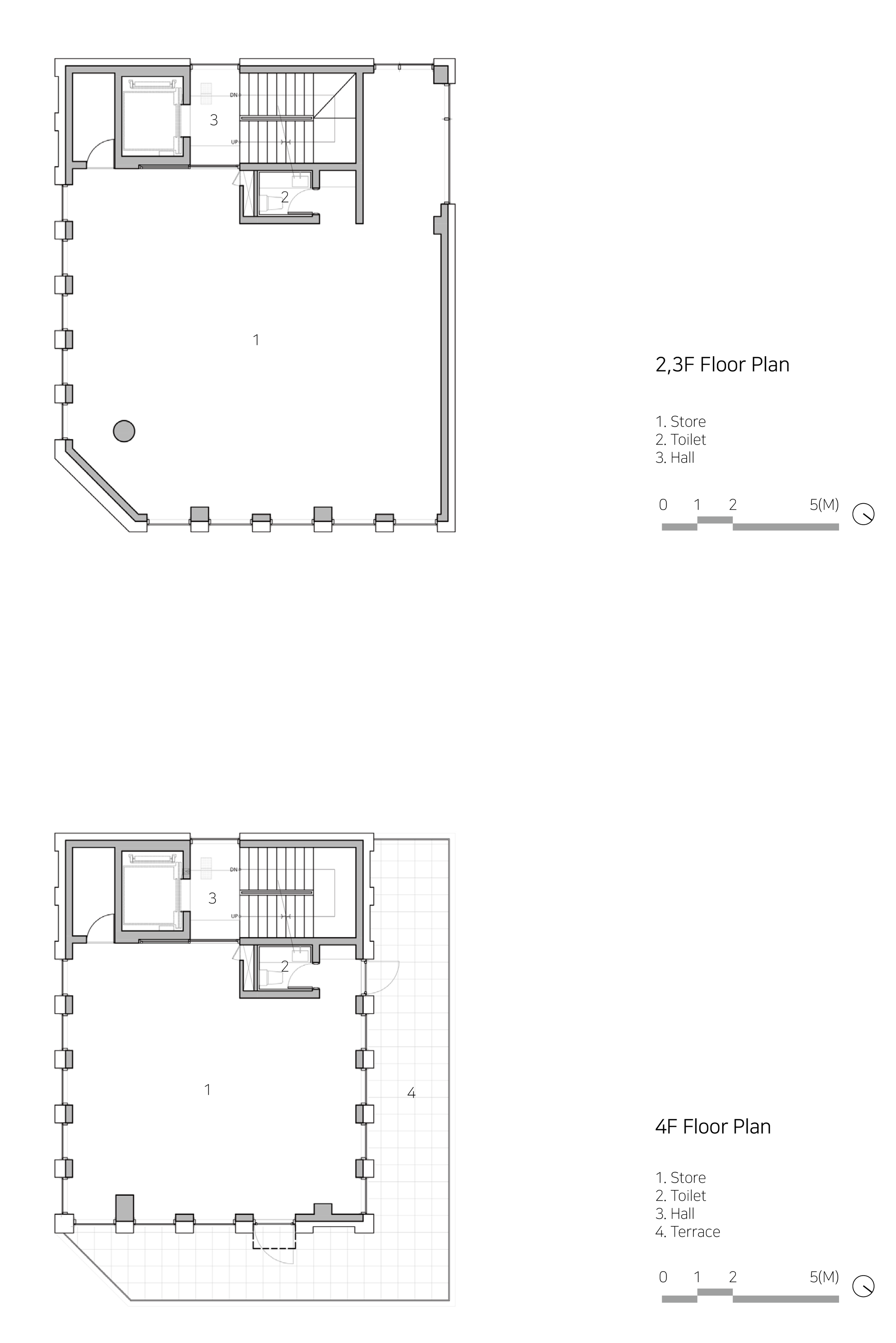
Total floor area l 699.44 ㎡
Number of floors l B1, 5 floors
Team l Hyunjin Cho, Chulho Lee, Eunrim Choi, Byungho Cho
Photographer l Rohspace
신사동 552-20은 모퉁이 도로에 위치해 두 개의 도로 입면이 동시에 노출되며, 전면으로는 목련공원을 마주하고 있다. 이로 인해 대지는 외부에서의 높은 가시성과 함께, 내부에서는 공원의 조망을 적극적으로 끌어들일 수 있는 잠재력을 가진다. 본 계획은 이러한 조건을 단순한 배치의 이점에 그치지 않고, 건물 전체의 공간 구성과 입면 전략으로 확장시키는 데서 출발했다.
건물은 주변 대비 인지성을 확보하기 위해 5층 규모로 계획되었으며, 법규에 따른 매스 조정을 통해 모퉁이 대지의 특성을 드러내는 형태로 구성되었다. 특히 공원을 향한 전면부에는 테라스를 배치하여 외부의 풍경이 내부 공간으로 자연스럽게 침투하도록 유도하고, 내부 사용자에게는 공원과의 시각적·공간적 연속성을 제공한다.
입면과 매스의 구성에는 그리드 개념을 도입하였다. 반복되는 면과 선으로 이루어진 정직한 그리드는 건물 전반에 강한 규칙성을 부여하며, 다양한 시점에서 일관된 인상을 유지하는 동시에 모퉁이 조건에서 변화하는 조망을 유연하게 수용한다. 이러한 규칙성은 건물을 하나의 ‘거대한 오브제’로 인식하게 하며, 도로와 공원 양측에서 시선을 끌어당기는 장치로 작동한다.
재료 선택 역시 주변 맥락에 대한 응답으로 이루어졌다. 인접 건물들이 주로 금속과 무채색 계열의 차갑고 어두운 재료를 사용하는 환경 속에서, 본 건물은 밝고 따뜻한 질감을 가진 트래버틴을 적용함으로써 명확한 대비를 형성한다. 이는 단순한 시각적 차별을 넘어, 공원과 맞닿은 장소적 성격을 강화하고, 도시 속에서 보다 개방적이고 친화적인 인상을 구축하는 전략이다.
옥탑부의 난간벽 역시 입면 그리드의 연장선상에서 계획되었다. 상부까지 이어지는 규칙적인 구성은 건물 전체를 단절 없이 하나의 매스로 인식하게 하며, 스케일을 넘어서는 조형적 완결성을 부여한다. 결과적으로 이 건물은 주변 맥락 속에서 명확한 존재감을 가지는 동시에, 공원과 도로, 내부 공간을 유기적으로 연결하는 매개체로 작동한다.
