Hannam 157
Location l Yongsan-gu, Seoul
Type l architecture, New construction
Program l Neighborhood Living facilities
Status l Completed (2024)
Site area l 162.20㎡
Total floor area l 415.70㎡
Number of floors l B1, 5 floors
Team l Hyunjin Cho, Chulho Lee, Junhee Park
Photographer l Dahaepark
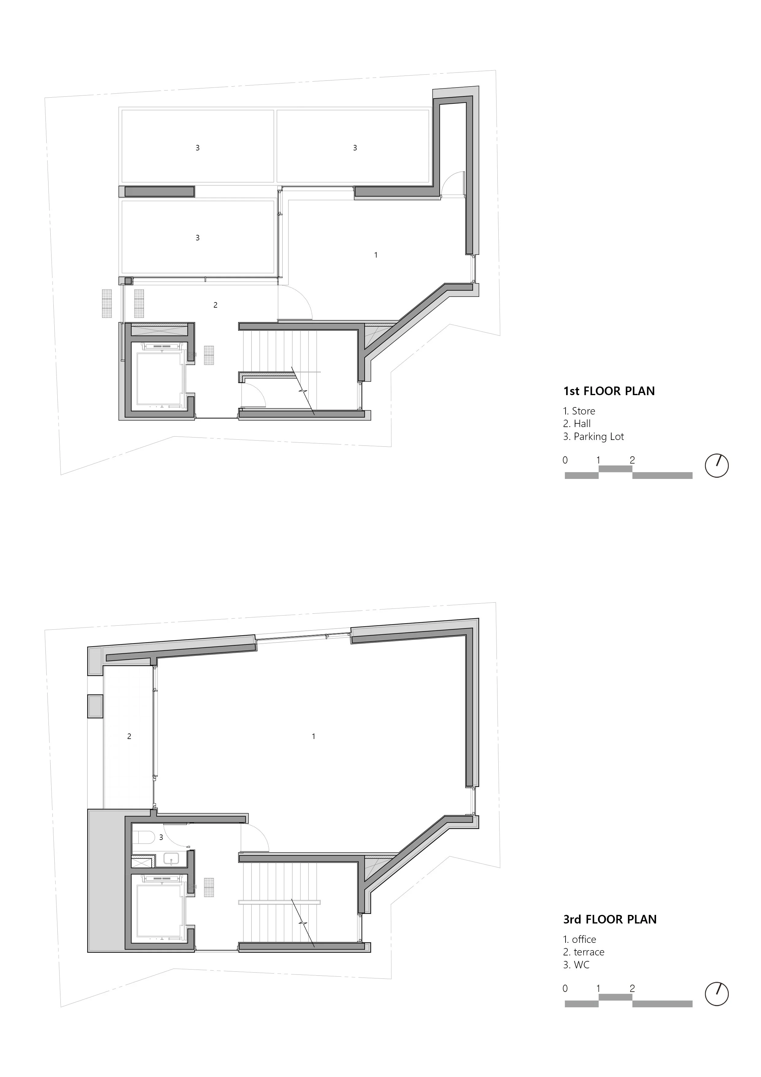
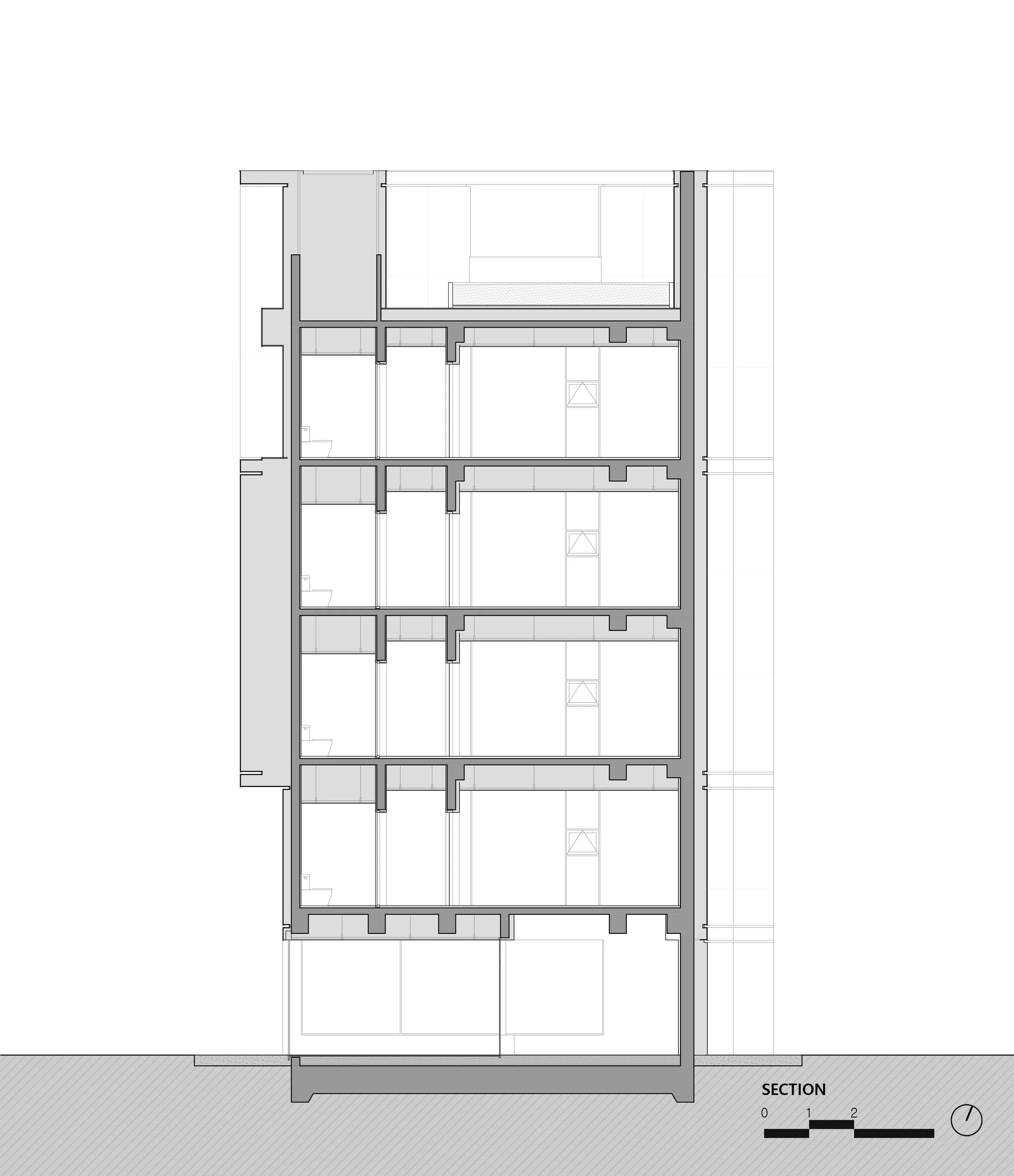
좋은 조망을 가진 대지. 넓지 않은 골목, 인근 필지들의 배치를 비롯하여 여러 사회적 조건들이 만들어낸 주변 환경은 한동안 바뀌지 않을 것 같다. 시원하기도 하지만, 무엇보다 한층 한층 올라갈수록 그 깊이와 시야가 다양하게 변하는 조망이다. 이는 단순한 환경적 조건을 넘어, 프로젝트의 공간과 형태를 만드는 핵심적인 출발점이 되었다. 각 공간은 고유한 시각적 경험으로 주변과 관계 맺도록 계획하였다. 높이에 따라 변하는 조망은 테라스라는 건축적 장치로 공간화하였다. 각 층의 테라스는 내외부의 매개 공간으로 건물 내부를 확장하고 외부에 깊이를 부여하며, 단순한 부속 공간이 아닌 건물 전체의 볼륨과 입면을 구성하는 중요한 요소가 된다. 테라스가 만들어내는 비움과 중첩은 입면에 입체적인 표정을 더한다. 내부와 외부, 사적공간과 공적공간을 이분법적으로 명확히 나눠버리는 파사드가 대신, 전이공간을 이용하여 모호하게 중첩된 변화를 전달하고 싶었다. 이를 통해 프로젝트는 주변 환경을 적극적으로 수용하면서, 내부와 외부가 긴밀하게 교차하는 시각적/공간적 경험을 제안하고자 했다. 디자인 프로세스대상지의 지형과 높이별 조망을 출발점으로 주변 맥락을 분석하고, 인접 건물 사이에서 확보되는 시선 방향과 레벨 차이를 고려해 기본 매스를 설정하였다. 매스는 단일 볼륨이 아닌 층위가 드러나는 형태로 분절하여 각 높이에서 다른 공간 경험이 가능하도록 계획하였다. 또한 매스를 비우고 들여내어 빛과 시선을 내부로 유입시키고, 테라스와 공용 공간을 형성함으로써 건물이 주변 환경과 적극적으로 관계 맺도록 했다. 이러한 오프닝과 테라스는 입면에 리듬을 형성하고, 내부에서는 깊이감과 중첩된 공간 경험을 만들어 조망을 건축 형태와 경험을 조직하는 핵심 요소로 작동하도록 한다.
비움이 만드는 건물의 깊이 좋은 조망을 가진 대지. 넓지 않은 골목, 인근 필지들의 배치를 비롯하여 여러 사회적 조건들이 만들어낸 주변 환경은 한동안 바뀌지 않을 것 같다. 시원하기도 하지만, 무엇보다 한층 한층 올라갈수록 그 깊이와 시야가 다양하게 변하는 조망이다. 이는 단순한 환경적 조건을 넘어, 프로젝트의 공간과 형태를 만드는 핵심적인 출발점이 되었다. 각 공간은 고유한 시각적 경험으로 주변과 관계 맺도록 계획하였다.
높이에 따라 변하는 조망은 테라스라는 건축적 장치로 공간화하였다. 각 층의 테라스는 내외부의 매개 공간으로 건물 내부를 확장하고 외부에 깊이를 부여하며, 단순한 부속 공간이 아닌 건물 전체의 볼륨과 입면을 구성하는 중요한 요소가 된다.
테라스가 만들어내는 비움과 중첩은 입면에 입체적인 표정을 더한다. 내부와 외부, 사적공간과 공적공간을 이분법적으로 명확히 나눠버리는 파사드가 대신, 전이공간을 이용하여 모호하게 중첩된 변화를 전달하고 싶었다. 이를 통해 프로젝트는 주변 환경을 적극적으로 수용하면서, 내부와 외부가 긴밀하게 교차하는 시각적/공간적 경험을 제안하고자 했다.
